|
серия
|
265-91 |
|
Тип
|
Чугунная |
|
Материал
|
Высокопрочный чугун |
|
Cерия
|
265-91 |
|
Вид
|
Демонтажная вставка |
|
DN
|
40 |
|
Давление,PN
|
PN16 |
|
Среда
|
Для воды, нейтральных жидкостей и сточных вод |
|
Т рабочей среды, ˚С
|
до +70° C |
|
Присоединение
|
Фланцевое |
|
Инженерная система
|
Водоснабжение, сточные воды |
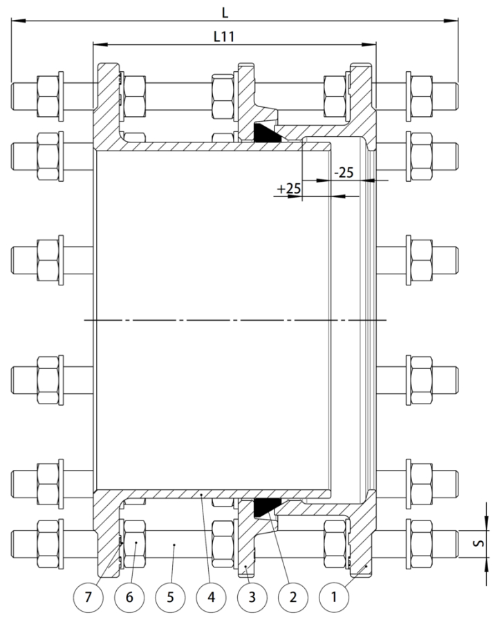
Демонтажная вставка из высокопрочного чугуна, DN40-1200 для воды, нейтральных жидкостей и сточных вод, до +70° C.
Демонтажная вставка AVK упрощает монтаж и демонтаж фланцевой запорной арматуры, фитингов, расходомеров и насосов за счет точной регулировки строительной длины. Демонтажные вставки компенсируют осевое смещение труб при установке и демонтаже.
| Вариант 265/50-001 | |
|---|---|
| Соединение | Фланцевое |
| Материал | Высокопрочный чугун |
| Диапазон диаметров | DN 40-1200 |
| Классификация давления | PN 16 |
Преимущества
- Диапазон регулировки ±25 мм;
- Компенсирует осевое смещение трубы во время установки и демонтажа благодаря возможности регулирования по длине путем раздвижки наружного и внутреннего корпусов;
- Уплотнение из резины EPDM, разрешенной к применению в сетях питьевого водоснабжения;
- Корпус изготовлен из высокопрочного чугуна с порошковым эпоксидным покрытием RAL 5017, толщиной 250мкм, сертификат GSK, WRAS-DVGW/W270/UBA;
- Допустимые осевые отклонения:
DN400-500 < 5°,
DN600-800 < 3°,
DN900-1200 < 2°.
- Шпильки и гайки изготовлены из нержавеющей стали A2, c покрытием DeltaSeal на гайках.
Размеры
*AVK International A/S оставляет за собой право вносить изменения в конструкцию и материалы, не ухудшающие эксплуатационные характеристики
Комплектующие
| 1. | Фланец |
высокопрочный чугун GJS-450-10 |
| 2. | Прокладка |
резина EPDM |
| 3. |
Верхний фланец |
высокопрочный чугун GJS-450-10 |
| 4. |
Фланцевый раструб |
высокопрочный чугун GJS-450-10 |
| 5. |
Шпилька |
нержавеющая сталь А2 |
| 6. | Гайка | нержавеющая сталь А2 с антифрикционным покрытием |
| 7. | Шайба | нержавеющая сталь А2 |


Разрешения
- Разрешение WRAS
Стандарты
- Рассверловка фланцев по ГОСТ 33259-2015 Ряд 1 (EN1092-2; ISO 7005-2)
Чтобы приобрести понравившийся товар, необходимо его заказать. Есть несколько сценариев того, как это можно сделать.
- Выбрать понравившийся товар и нажать кнопку «Заказать». При оформлении заказа заполнить форму. Вписать информацию в поля: ФИО, телефон и e-mail. Затем вам перезвонит менеджер, чтобы подтвердить ваше согласие на совершение покупки.
- Выбрать понравившийся товар и нажать кнопку «В корзину». Затем перейти в корзину и нажать «Оформить заказ». Далее заполнить форму с контактными данными и отправить заявку. С вами свяжется менеджер для дальнейшего обсуждения.
- Перейти в карточку товара и нажать «Купить в один клик». После нажатия нужно заполнить форму и отправить заявку. С вами свяжется менеджер для дальнейшего обсуждения.
Мы работаем с физическими и юридическими лицами. И предоставляем сразу два варианта оплаты.
- Оплата на расчётный счет через банк.
- Безналичный расчет. Принимаем карты Visa и MasterCard.
Доставляем продукцию по всей России автомобильным и железнодорожным транспортом. Автомобильные грузоперевозки осуществляются силами нашей логистической службы. В нашем распоряжении собственный автопарк.
Перевозки до 1,5 тонн производятся на автомобилях ПЗА - 2887 «Косуля», до 3,5 тонн – на автомобилях ПЗА - 3998 «Гризли». До 20 тонн – на грузовиках «ПАРНАС». Грузоперевозки объемом свыше 20 тонн осуществляются железнодорожным транспортом.
Доставка продукции производится по всей России. Стоимость услуги рассчитывается по конечному пункту назначения.

