|
Тип
|
Чугунная |
|
Материал
|
Высокопрочный чугун |
|
Вид
|
Демонтажная вставка |
|
DN
|
50-2500 |
|
Давление,PN
|
PN16 |
|
Среда
|
Вода |
|
Уплотнение
|
Эластомер |
|
Присоединение
|
Фланцевое |
|
Материал запирающего элемента
|
Чугун |
|
Направление
|
Двустороннее |
| Вариант 9810 PN 16 | |
|---|---|
| Соединение | Фланцевое |
| Материал | Высокопрочный чугун |
| Диапазон диаметров | DN50 - DN2500 |
| Классификация давления | PN 16 |
Особенности модели
- Простой монтаж и демонтаж фланцевой арматуры.
- Цельные резьбовые шпильки, дополнительные фиксирующие болты не требуются
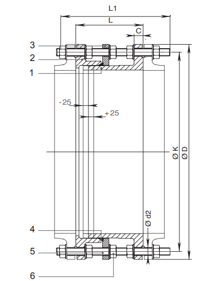
- Диапазон регулировки длины: строительная длина (см. таблицу) +/- 25 мм
- Размеры и отверстия фланца согласно EN 1092-2 | PN 16
- Тип 02 – Фланец стальной плоский на приварном кольце,
- Тип 03 – Фланец стальной плоский на отбортовке,
- Тип 04 – Фланец стальной плоский на хомуте под приварку по ГОСТ 33259-2015
может оказаться невозможным. Для присоединения демонтажной вставки к данным типам фланцев рекомендуется заменить шпильки на более длинные.
Размеры
|
DN мм |
D мм |
К мм |
L мм |
L1 мм |
С мм |
Расчетная масса кг |
|---|---|---|---|---|---|---|
| 50 | 165 | 125 | 180 | 280 | 19 | 11 |
| 65 | 185 | 145 | 180 | 280 | 19 | 13 |
| 80 | 200 | 160 | 200 | 330 | 19 | 17 |
| 100 | 220 | 180 | 200 | 330 | 19 | 20 |
| 125 | 250 | 210 | 200 | 330 | 19 | 24 |
| 150 | 285 | 240 | 200 | 330 | 19 | 30 |
| 200 | 340 | 295 | 200 | 330 | 20 | 45 |
| 250 | 405 | 355 | 230 | 370 | 22 | 66 |
| 300 | 460 | 410 | 250 | 410 | 24,5 | 84 |
| 350 | 520 | 470 | 260 | 410 | 26,5 | 107 |
| 400 | 580 | 525 | 270 | 430 | 28 | 142 |
| 450 | 640 | 585 | 270 | 430 | 30 | 177 |
| 500 | 715 | 650 | 280 | 440 | 31,5 | 200 |
| 600 | 840 | 770 | 300 | 500 | 36 | 305 |
| 700 | 910 | 840 | 300 | 500 | 39,5 | 321 |
| 800 | 1025 | 950 | 320 | 520 | 43 | 469 |
| 900 | 1125 | 1050 | 320 | 520 | 46,5 | 535 |
| 1000 | 1255 | 1170 | 340 | 560 | 50 | 698 |
| 1100 | 1355 | 1270 | 340 | 560 | 53,5 | 830 |
| 1200 | 1485 | 1390 | 360 | 600 | 57 | 1070 |
| 1300 | 1585 | 1490 | 370 | 630 | 59 | 1172 |
| 1400 | 1685 | 1590 | 380 | 630 | 60 | 1270 |
| 1500 | 1820 | 1710 | 380 | 610 | 62,5 | 1560 |
| 1600 | 1930 | 1820 | 400 | 700 | 65 | 1705 |
| 1700 | 2030 | 1920 | 445 | 750 | 68 | - |
| 1800 | 2130 | 2020 | 450 | 750 | 70 | - |
| 2000 | 2345 | 2230 | 460 | 775 | 75 | - |
| 2200 | 2555 | 2440 | 470 | 775 | 80 | - |
| 2500 | 2890 | 2750 | 470 | 775 | 76 | - |
Комплектующие
| 1,2. | Наружные фланцы | высокопрочный чугун с эпоксидным покрытием |
| 3. | Внутренний фланец | сталь |
| 4. | Уплотнение | эластомер |
| 5. | Резьбовые шпильки | cталь оцинкованная |
| 6. | Гайки | cталь оцинкованная |

Преимущества:
- Надежность и долговечность (чугунная конструкция).
- Удобство при ремонтных работах.
- Компенсация продольных смещений.
Применение:
- Водоснабжение, канализация, промышленные трубопроводы.
- Системы, где требуется компенсация температурных расширений или вибраций.
- Упрощение обслуживания и замены арматуры.
Чтобы приобрести понравившийся товар, необходимо его заказать. Есть несколько сценариев того, как это можно сделать.
- Выбрать понравившийся товар и нажать кнопку «Заказать». При оформлении заказа заполнить форму. Вписать информацию в поля: ФИО, телефон и e-mail. Затем вам перезвонит менеджер, чтобы подтвердить ваше согласие на совершение покупки.
- Выбрать понравившийся товар и нажать кнопку «В корзину». Затем перейти в корзину и нажать «Оформить заказ». Далее заполнить форму с контактными данными и отправить заявку. С вами свяжется менеджер для дальнейшего обсуждения.
- Перейти в карточку товара и нажать «Купить в один клик». После нажатия нужно заполнить форму и отправить заявку. С вами свяжется менеджер для дальнейшего обсуждения.
Мы работаем с физическими и юридическими лицами. И предоставляем сразу два варианта оплаты.
- Оплата на расчётный счет через банк.
- Безналичный расчет. Принимаем карты Visa и MasterCard.
Доставляем продукцию по всей России автомобильным и железнодорожным транспортом. Автомобильные грузоперевозки осуществляются силами нашей логистической службы. В нашем распоряжении собственный автопарк.
Перевозки до 1,5 тонн производятся на автомобилях ПЗА - 2887 «Косуля», до 3,5 тонн – на автомобилях ПЗА - 3998 «Гризли». До 20 тонн – на грузовиках «ПАРНАС». Грузоперевозки объемом свыше 20 тонн осуществляются железнодорожным транспортом.
Доставка продукции производится по всей России. Стоимость услуги рассчитывается по конечному пункту назначения.

